MORADIA
EM SINTRA
TABELA DE CONTEÚDOS
1. LOCAL E
TIPO DE OBRA
Localização da obra: Sintra, Portugal
Tipo de obra: Obra de construção de uma moradia unifamiliar
2.
PROJETO DE
ARQUITETURA
2.1
AUTORIA DO PROJETO
O descrito em relação ao Projeto de Arquitetura, é no essencial o que consta da respetiva Memória Descritiva. E créditos devem ser dados ao seu autor.
Autoria do Projeto de Arquitetura "Moradia em Sintra": Seixal, Gabinete de Ideias
Legenda da imagem: Moradia em Sintra. Projeto de Arquitetura. Vista tridimensional.
2.2
ENQUADRAMENTO
Moradia isolada, em lote com bastante comprimento, mas com frente relativamente reduzida por comparação. No que respeita ao terreno, o mesmo apresenta inclinação algo acentuada.
Tendo em conta as condicionantes do lote, optou-se por uma solução em “L” com a construção a envolver a zona da piscina. A piscina fica instalada na lateral direita do lote.
A garagem está localizada ao nível da cave. A entrada da mesma terá acesso perto da cota natural do terreno, tirando proveito do perfil do terreno do lote. A entrada e o corredor de acesso para a garagem, será localizado na lateral esquerda do lote.
O local, sendo de caracter urbano, encontra-se servido de todas as infraestruturas básicas.
Tratando-se de uma zona essencialmente de moradias procurou-se enquadrar o edifício na malha urbana existente, tirando proveito da sua baixa volumetria, assim como da cércea e das cores e materiais a utilizar.
O projeto para esta moradia em Sintra, apresenta bastante área de terreno permeável.
Legenda da imagem: Moradia em Sintra. Projeto de Arquitetura. Vista tridimensional.
2.3
DESCRIÇÃO
DO EDIFÍCIO
Trata-se de um imóvel de três pisos e de um fogo destinado a habitação. Moradia unifamiliar de tipologia T-5. No que a acessos diz respeito, o acesso principal é feito pela frente do lote, localizado a Sul. Os pisos comunicam por um acesso vertical interior.
Legenda da imagem: Moradia em Sintra. Projeto de Arquitetura. Vista tridimensional.
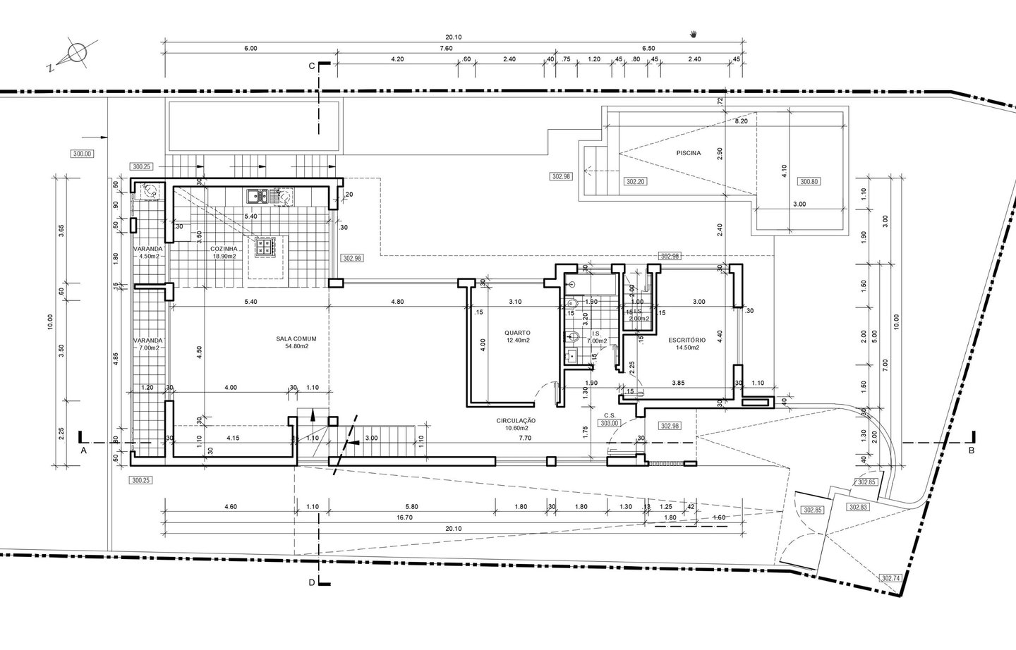
2.3.1 RÉS DO CHÃO
O rés do chão é composto por uma cozinha, por uma sala comum de dimensões generosas, um quarto e um escritório. Sendo estas divisões servidas por uma casa de banho de apoio.
Legenda da imagem: Moradia em Sintra. Projeto de Arquitetura. Planta do RC.
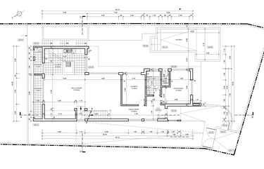
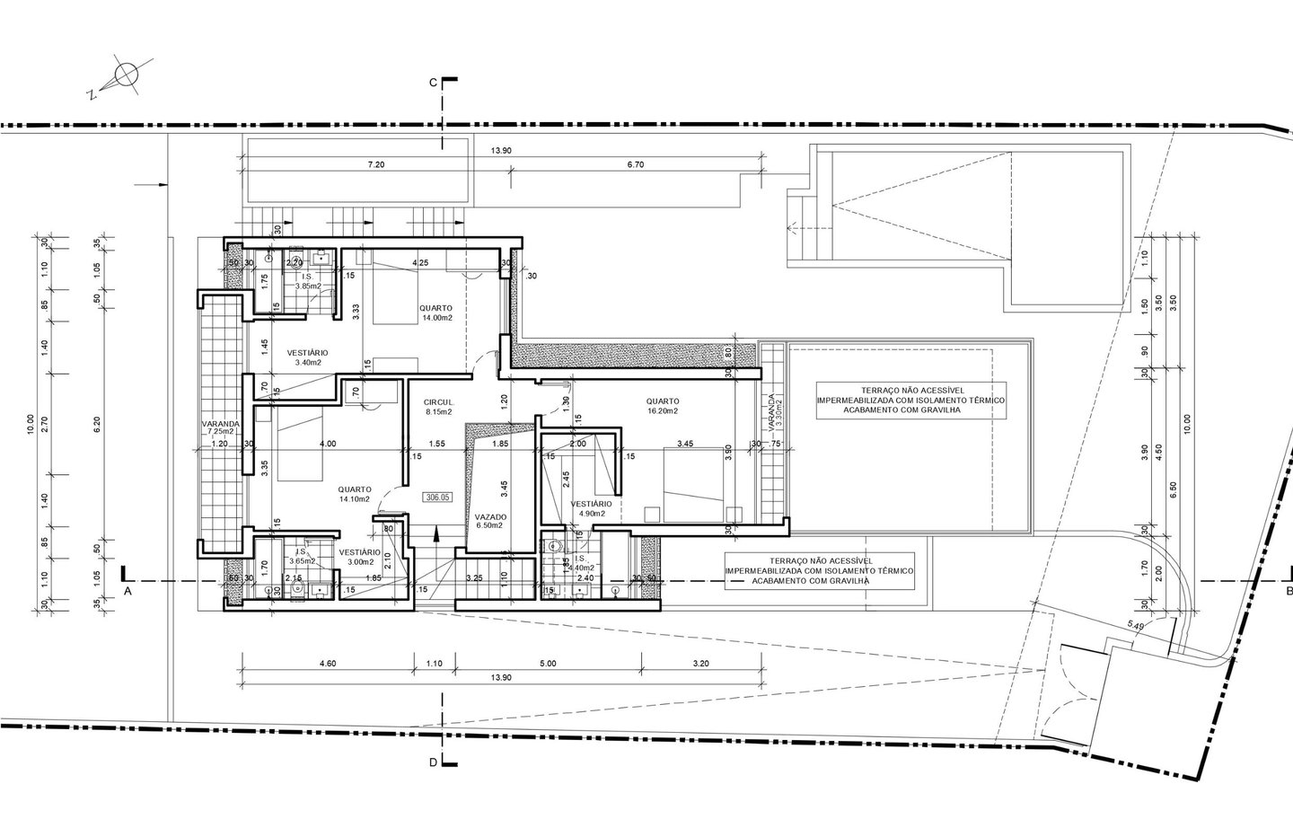
2.3.2 PISO 1
No piso superior ou Piso 1, existem três quartos, cada um deles com casa de banho privativa e com varanda.
Legenda da imagem: Moradia em Sintra. Projeto de Arquitetura. Planta do Piso 1.
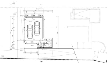
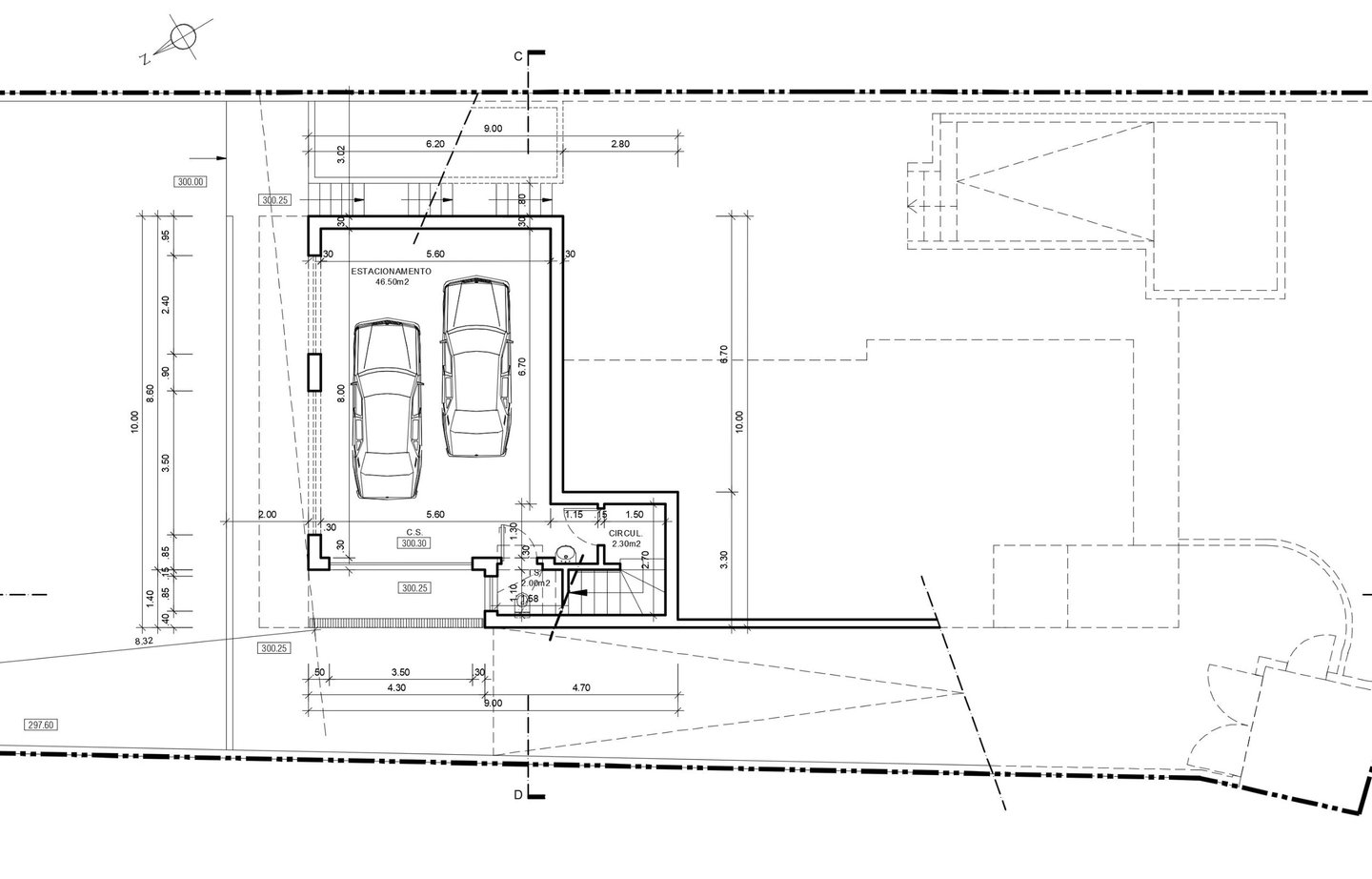
2.3.3 CAVE
O edifício inclui ainda outro piso, constituído por uma cave para garagem e arrumos. Este piso mais inferior, é justificado pelo acentuado desnível do terreno do lote.
Legenda da imagem: Moradia em Sintra. Projeto de Arquitetura. Planta da Cave.
2.4 SISTEMA
CONSTRUTIVO E ACABAMENTOS
A Estrutura é em betão armado com fundações directas e lajes maciças. A construção é do tipo tradicional com paredes exteriores em alvenaria de tijolo e isolamento pelo exterior.
Os pavimentos interiores são em mosaico hidráulico ou pedra no hall de entrada, casas de banho e cozinha. A sala e os quartos são em piso flutuante.
As paredes interiores são acabadas a tinta de água, sendo nas casas de banho e cozinha revestidas a azulejo até à altura das vergas das portas.
Os tectos são estucados e pintados, levando eventualmente tecto falso. As janelas são de duas folhas, de abrir com caixilharia em PVC com corte térmico e providas de estores. A cobertura da moradia, em terraço, é revestida a tela de forma a garantir um correto isolamento.
2.5 ÁREAS E PARÂMETROS URBANÍSTICOS
Área do lote: 630.00 metros quadrados
Área de Implantação: 141.90 metros quadrados
Total de impermeabilização do lote: 218.750 metros quadrados
Área permeável (terreno vegetal): 203.30 metros quadrados
Área da Cave: 65.20 metros quadrados
Área do Rés do Chão: 148.20 metros quadrados
Área do Piso 1: 109.20 metros quadrados
Área de Construção (Rés do Chão + 1.º Andar): 257.40 metros quadrados
Área bruta de Construção: 322.60 metros quadrados
Área de varandas: 22.00 metros quadrados
Área exterior coberta (alpendres): 28.30 metros quadrados
Área da Pérgula: 5.50 metros quadrados
Volume da piscina: 42.05 metros cúbicos
Índice de ocupação: 0.22
Índice de construção: 0.40
Cércea: 7.06 metros
3.
PROJETO DE
ESTABILIDADE
3.1 AUTOR
DO PROJETO
Autor do Projeto de Estruturas e Fundações:
António Trigo Marquês
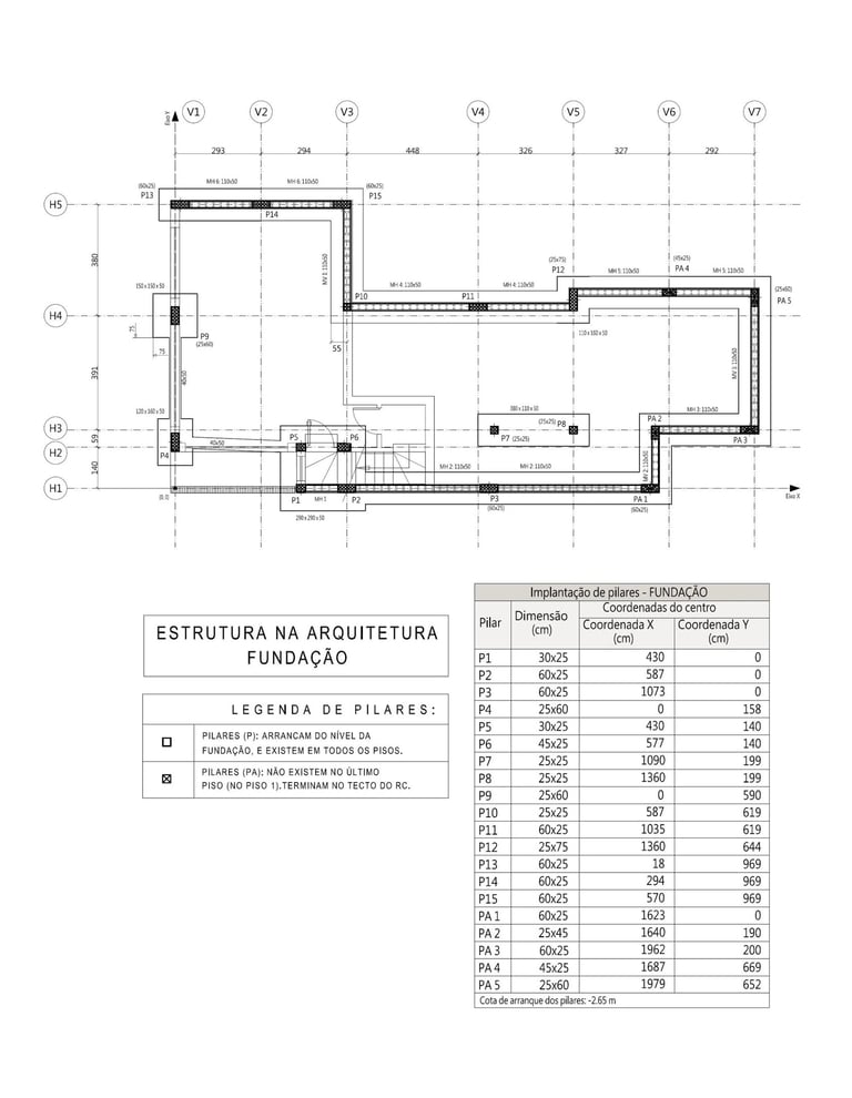
Legenda da imagem: Moradia em Sintra.
Projeto de Estruturas e Fundações.
Planta da estrutura na arquitetura. Fundação.
Legenda da imagem: Moradia em Sintra.
Projeto de Estruturas e Fundações.
Vista tridimensional da Fundação.
3.2
NÍVEIS OU PATAMARES
DA OBRA
Tal como descrito no Projeto de Arquitetura, trata-se de um imóvel que se desenvolve em três pisos, ou dois pisos mais cave.
O número de patamares considerado no Projeto de Estabilidade, para esta moradia em Sintra, foi de quatro. Designadamente e por ordem ascendente:
Nível 1: Fundação:
Nível 2: Tecto da Cave;
Nível 3: Tecto do Rés do Chão;
Nível 4: Tecto do Piso 1 / Cobertura.
Legenda da imagem: Moradia em Sintra.
Projeto de Estruturas e Fundações.
Planta estrutural da Fundação.
Legenda da imagem: Moradia em Sintra.
Projeto de Estruturas e Fundações.
Vista tridimensional da Fundação.
3.3
MATERIAIS
E OPÇÕES
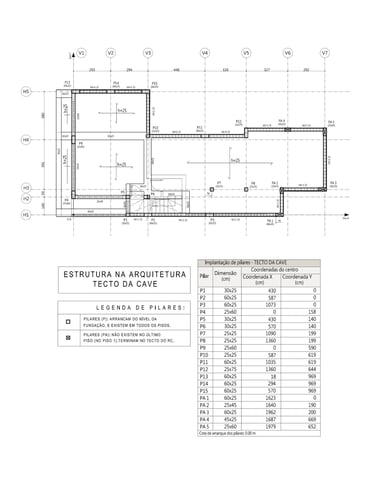
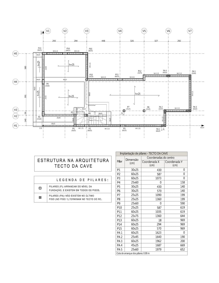
A estrutura da moradia, tem características próprias de um edifício de estrutura em betão armado, constituído por lajes maciças, vigas, pilares, e elementos de fundação, de betão armado do tipo: Betão C25/30 (B30) e Aço A500.
Os recobrimentos adotados são de cinco centímetros para as sapatas e vigas de fundação. Para os restantes elementos, o recobrimento adotado é de três centímetros.
A estrutura é projetada com uma espessura de vinte e cinco centímetros para as secções de pilares e vigas.
Legenda da imagem: Moradia em Sintra.
Projeto de Estruturas e Fundações.
Planta da estrutura na arquitetura. Tecto da Cave.
Legenda da imagem: Moradia em Sintra.
Projeto de Estruturas e Fundações.
Planta estrutural do Tecto da Cave.
3.4
QUANTIDADES
DA OBRA
As quantidades obtidas para a obra, são as seguintes:
Fundações (Sapatas isoladas, sapatas contínuas e vigas de equilíbrio): 34,500 metros cúbicos de betão e 2 011 quilogramas de varões de aço;
Estrutura: 167,92 metros cúbicos de betão e 16 533 quilogramas de aço.
Legenda da imagem: Moradia em Sintra.
Projeto de Estruturas e Fundações.
Planta da estrutura na arquitetura. Tecto do Rés do Chão.
Legenda da imagem: Moradia em Sintra.
Projeto de Estruturas e Fundações.
Planta estrutural do Tecto do Rés do Chão.
3.5
SOFTWARE UTILIZADO
Para o Projeto de Estruturas desta moradia foi utilizado software BIM (Building Information Modeling), gerador de ficheiros IFC (Industry Foundation Classes).
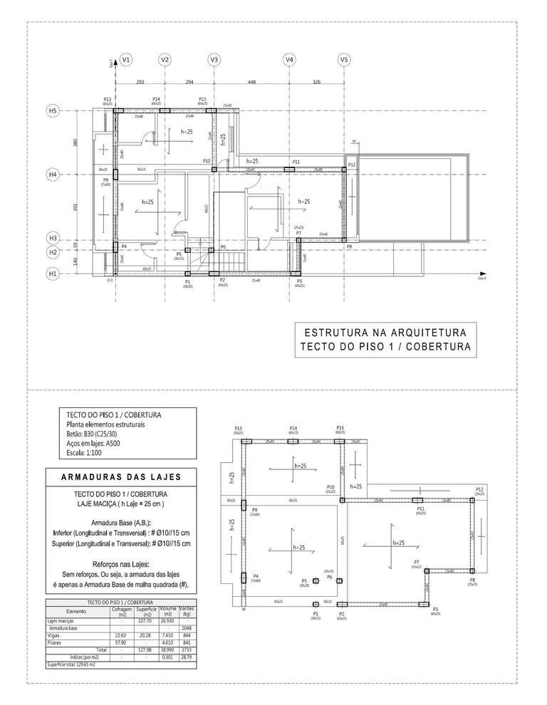
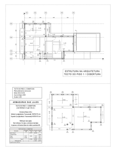
Legenda da imagem: Moradia em Sintra.
Projeto de Estruturas e Fundações.
Plantas estruturais do Tecto do Piso 1 / Cobertura.
3.6 LEGISLAÇÃO
Em Março de 2021, data da realização do projeto, a estrutura desta moradia em Sintra, foi calculada e dimensionada segundo o Regulamento de Segurança e Acções (RSA), e o Regulamento de Estruturas de Betão Armado e Pré-Esforçado (REBAP).
antoniotm.pt © Todos os direitos reservados | POLÍTICA DE PRIVACIDADE | POLÍTICA DE COOKIES
ANTÓNIO TRIGO MARQUÊS
ENGENHEIRO CIVIL PROJETISTA
AntonioTM@antoniotm.pt
SERVIÇOS
PROJETO DE ESTABILIDADE
PROJETOS DE ESPECIALIDADES
PROJETOS PARA MORADIAS


