MORADIA EM
VILA ALEGRE
TABELA DE CONTEÚDOS
2. PROJETO DE ARQUITETURA
2.1 AUTOR DO PROJETO
2.2 ENQUADRAMENTO
2.3 DESCRIÇÃO DO EDIFÍCIO
2.3.1 PISO 0
2.3.2 PISO 1
2.3.3 PISO -1
2.4 SISTEMA CONSTRUTIVO
2.4.1 ESTRUTURA E FUNDAÇÕES
2.4.2 PAREDES
2.4.3 PAVIMENTOS
2.4.4 COBERTURA
2.4.5 VÃOS, PORTAS E JANELAS
2.4.6 ACABAMENTOS
2.5 ÁREAS E PARÂMETROS URBANÍSTICOS
1. LOCAL E
TIPO DE OBRA
Localização da obra: Vila Alegre, concelho do Seixal, Portugal
Tipo de obra: Obra de construção de uma moradia
2.
PROJETO DE
ARQUITETURA
2.1 AUTOR
DO PROJETO
O descrito em relação ao Projeto de Arquitetura, é no essencial o que consta da respetiva Memória Descritiva e créditos devem ser dados ao seu autor.
Autor da Arquitetura do projeto "Moradia em Vila Alegre": Arquiteto Bruno Ramos
Legenda da imagem: Moradia em Vila Alegre, concelho do Seixal. Projeto de Arquitetura. Vista tridimensional.
2.2
ENQUADRAMENTO
O lote da moradia possui aproximadamente 1600 metros quadrados (ou mais exatamente 1598 metros quadrados) e está localizado em Vila Alegre, concelho do Seixal.
Na sua envolvente são encontradas moradias de volumetria significativa e semelhante ao proposto para este trabalho. O local é servido por uma rede viária com boas condições de acesso.
Legenda da imagem: Moradia em Vila Alegre, concelho do Seixal. Projeto de Arquitetura. Vista tridimensional.
2.3
DESCRIÇÃO
DO EDIFÍCIO
A construção desta moradia em Vila Alegre não busca o mimetismo, mas sim um diálogo harmonioso com a envolvente. Adota uma linguagem arquitetónica contemporânea e distingue-se pela simplicidade geométrica.
A habitação desenvolve-se em “L”, composta por dois grandes volumes, quase como se fossem duas unidades habitacionais independentes.
O projeto valoriza o espaço exterior, integrando uma piscina ao nível do piso térreo. No piso inferior, à cota da cave, situam-se a casa das máquinas e uma instalação sanitária de apoio à piscina e à área exterior.
Esta moradia distribui-se por três pisos, garantindo uma organização funcional e equilibrada dos espaços.
Legenda da imagem: Moradia em Vila Alegre, concelho do Seixal. Projeto de Arquitetura. Vista tridimensional.
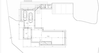
2.3.1
PISO 0 OU PISO TÉRREO
No piso térreo ou piso zero, a habitação possui duas entradas. Ambas as entradas dão para salas distintas.
Ainda neste piso térreo, podemos encontrar um quarto, três instalações sanitárias, uma dispensa, uma lavandaria e uma cozinha aberta para a sala de quarenta e quatro metros quadrados.
Legenda da imagem: Moradia em Vila Alegre, concelho do Seixal. Projeto de Arquitetura. Planta do Piso 0.
2.3.2 PISO 1
O piso um, destinado essencialmente às áreas de descanso, desenvolve-se em dois corpos, sendo cada um deles servido por uma escada própria que chega a um hall de distribuição para as restantes divisões de cada corpo.
O corpo mais pequeno, para além do hall, possui dois quartos, um deles com instalação sanitária privativa. Ambos os quartos dão acesso a uma varanda exterior de dimensões generosas.
No volume maior, a zona de distribuição dá acesso a dois quartos. Ambos os quartos contam com instalação sanitária de uso privativo e um closet.
Um dos quartos dá acesso a uma varanda. O outro quarto dá acesso a um amplo terraço de aproximadamente quarenta metros quadrados. Este terraço está localizado por cima do estacionamento previsto ao nível do piso zero.
Legenda da imagem: Moradia em Vila Alegre, concelho do Seixal. Projeto de Arquitetura. Planta do Piso 1.
2.3.3 PISO -1 OU CAVE
No piso térreo ou piso zero, a habitação possui duas entradas. Ambas as entradas dão para salas distintas.
Ainda neste piso térreo, podemos encontrar um quarto, três instalações sanitárias, uma dispensa, uma lavandaria e uma cozinha aberta para a sala de quarenta e quatro metros quadrados.
Legenda da imagem: Moradia em Vila Alegre, concelho do Seixal. Projeto de Arquitetura. Planta do Piso -1.
2.4 SISTEMA CONSTRUTIVO
2.4.1
ESTRUTURA E FUNDAÇÕES
A estrutura desta moradia em Vila Alegre é de betão armado, com fundações diretas.
2.4.2
PAREDES
As paredes são em alvenaria de tijolo, sendo as exteriores duplas com isolamento térmico tipo 'WallMate' no seu interior e nas faces exteriores.
2.4.3
PAVIMENTOS
Sobre as lajes, estruturalmente projetadas como lajes maciças de betão armado, é aplicada uma camada de betonilha.
Os quartos são revestidos com soalho de qualidade. Nas instalações sanitárias e espaços comuns, são aplicados mosaicos cerâmicos ou revestimentos de pedra.
Os pavimentos exteriores do piso térreo são em placas de betão. Nas varandas do piso um (ou primeiro piso), os pavimentos são revestidos a pedra ou mosaico.
2.4.4
COBERTURA
A cobertura desta moradia em Vila Alegre é composta por lajes em terraço, com betonilha que forma pendentes com inclinação mínima de 2%.
2.4.5
VAÕS, PORTAS E JANELAS
Todas as caixilharias são de alumínio e os vãos são preenchidos por painéis de vidro duplo.
Os vãos das janelas e portas exteriores têm peitoris e soleiras de pedra, com espessura de três centímetros.
As portas interiores, bem como todos os trabalhos de carpintaria, são executados em madeira de boa qualidade, devidamente tratada e posteriormente envernizada ou lacada.
2.4.6
ACABAMENTOS
No interior, os gradeamentos e corrimãos são de aço pintado a esmalte cinzento-escuro. No exterior, os gradeamentos e corrimãos são em aço e vidro.
As loiças sanitárias são de boa qualidade, com modelos e cores a definir. Os lavatórios são de encastrar e as banheiras de embutir.
Legenda das três imagens presentes na galeria :
Moradia em Vila Alegre. Vistas 3D da Arquitetura.
2.5 ÁREAS E PARÂMETROS URBANÍSTICOS
Área do lote: 1598,00 metros quadrados
Área de implantação: 149,75 metros quadrados
Área permeável (66,33%) : 1059,95 metros quadrados
Área bruta do Piso 0: 149,75 metros quadrados
Área bruta do Piso 1: 147,33 metros quadrados
Área bruta do Piso -1: 148,56 metros quadrados
Cércea a partir da cota de soleira: 6,30 metros
Volumetria a partir da cota de soleira: 945,00 metros cúbicos
3.
PROJETO DE
ESTABILIDADE
3.1 AUTOR
DO PROJETO
Autor do Projeto de Estruturas e Fundações:
Engenheiro António T. Marquês
Legenda da imagem:
Moradia em Vila Alegre, Seixal. Projeto de Estabilidade.
Planta da Estrutura na Arquitetura. Fundação.
3.2
NÍVEIS OU PATAMARES
DA OBRA
Como descrito no Projeto de Arquitetura, este imóvel desenvolve-se em três pisos, ou dois pisos mais cave.
O número de patamares considerado no Projeto de Estabilidade para esta moradia em Vila Alegre foi de cinco, designadamente, por ordem ascendente:
Nível 1: Fundação;
Nível 2: Piso do -1;
Nível 3: Tecto do -1;
Nível 4: Tecto do 0;
Nível 5: Tecto do 1 e Cobertura.
Legenda da imagem:
Moradia em Vila Alegre, Seixal. Projeto de Estabilidade.
Planta Estrutural da Fundação.
Legenda da imagem:
Moradia em Vila Alegre, Seixal. Projeto de Estabilidade.
Vista tridimensional do modelo BIM da estrutura.
3.3
MATERIAIS
E OPÇÕES
A estrutura da moradia tem as características de um edifício de estrutura em betão armado e é genericamente constituída por lajes, vigas, pilares, muros e elementos de fundação.
Os materiais utilizados são, resumidamente: Aço A500 e betão de classe variável. Os recobrimentos adotados são de cinco centímetros para as fundações e de três centímetros para os restantes elementos.
No diálogo entre o projeto Estrutural e o projeto Arquitetónico, resultou uma espessura de vinte e cinco centímetros para as secções de pilares e vigas.
Para uma moradia com estas características – volumetria, vãos, localização sísmica e outras condicionantes, como diversas descontinuidades do modelo Arquitetónico – um valor preferível para a espessura da estrutura seria de trinta centímetros.
Legenda da imagem:
Moradia em Vila Alegre, Seixal. Projeto de Estabilidade.
Planta da Estrutura na Arquitetura. Piso do -1 ou Cave.
Legenda da imagem:
Moradia em Vila Alegre, Seixal. Projeto de Estabilidade.
Vista tridimensional do Piso do -1 ou Piso da Cave.
3.4
COMPLEXIDADE
DA OBRA
A obra apresenta uma complexidade considerável, resultante de diversos fatores, tais como:
descontinuidades no modelo arquitetónico e um número significativo de elementos de transição;
o número significativo de elementos de transição, associados a uma solução arquitetónica que idealiza lajes 'lisas' ou lajes fungiformes;
o elevado número de pilares, a sua variedade e os diferentes níveis onde começam e terminam;
os vãos a vencer, especialmente nas zonas de balanço ou consola, combinados com um modelo com muitas descontinuidades e elementos de transição.
a localização na Grande Lisboa (zona sísmica importante), em conjunto com as restantes condicionantes já mencionadas.
3.5 MODELO
ESTRUTURAL
Dada a configuração em planta do modelo Arquitetónico e Estrutural, em forma de L, e as suas dimensões consideráveis, seria interessante incluir uma junta de dilatação para separar os dois corpos, devido ao previsto mau comportamento dos cantos reentrantes.
No entanto, esta solução não foi prevista no modelo Arquitetónico inicial, e a compatibilidade entre a Estrutura e a Arquitetura, durante a fase do projeto Estrutural, já se mostrou particularmente difícil de alcançar, mesmo sem a referida junta.
O diálogo entre a Arquitetura e a Estrutura deve ser constante desde a génese do projeto, especialmente em obras com singularidades ou de maior importância. O investimento no Projeto, nomeadamente nos projetos de Arquitetura e Estruturas, é fundamental e nunca deve ser negligenciado.
Legenda da imagem:
Moradia em Vila Alegre, Seixal. Projeto de Estabilidade.
Planta da Estrutura na Arquitetura. Tecto do -1 ou Cave.
3.6 VOLUME
DE PEÇAS DO
PROJETO DE
ESTABILIDADE
Tendo em conta a volumetria da obra desta moradia em Vila Alegre, o respetivo projeto de Estabilidade gera um número significativo de peças, especialmente no que diz respeito aos desenhos.
O grau de complexidade apresentado exige maior atenção e cuidado com as peças em geral e com os desenhos em particular.
Legenda da imagem:
Moradia em Vila Alegre, Seixal. Projeto de Estabilidade.
Planta da Estrutura na Arquitetura. Tecto do 0.
Legenda da imagem:
Moradia em Vila Alegre, Seixal. Projeto de Estabilidade.
Vista tridimensional do modelo BIM da estrutura.
3.7
QUANTIDADES
DA OBRA
As quantidades obtidas para a obra desta moradia em Vila Alegre foram as seguintes:
Fundações (o que inclui as sapatas isoladas e as sapatas contínuas dos muros de betão): 71,120 metros cúbicos de betão e 3747 quilogramas de varões de aço;
Estrutura: 308,860 metros cúbicos de betão e 31 133 quilogramas de varões de aço.
Legenda da imagem: Moradia em Vila Alegre, Seixal.
Projeto de Estruturas e Fundações. Planta da Estrutura na Arquitetura. Tecto do Piso 1 e Cobertura.
Legenda da imagem:
Moradia em Vila Alegre, Seixal. Projeto de Estabilidade.
Vista tridimensional do Tecto do Piso 1 e Cobertura.
3.8
SOFTWARE UTILIZADO
Para o Projeto de Estabilidade desta moradia, foi utilizado software BIM (Building Information Modeling), gerador de ficheiros IFC (Industry Foundation Classes).
3.9 LEGISLAÇÃO
Em Fevereiro de 2021, a estrutura desta moradia em Vila Alegre, foi calculada e dimensionada de acordo com o Regulamento de Segurança e Acções (RSA) e o Regulamento de Estruturas de Betão Armado e Pré-Esforçado (REBAP).
De acordo com a legislação atual, nomeadamente os Eurocódigos, muitas das soluções encontradas não seriam possíveis.
antoniotm.pt © Todos os direitos reservados | POLÍTICA DE PRIVACIDADE | POLÍTICA DE COOKIES
ANTÓNIO TRIGO MARQUÊS
ENGENHEIRO CIVIL PROJETISTA
AntonioTM@antoniotm.pt
SERVIÇOS
PROJETO DE ESTABILIDADE
PROJETOS DE ESPECIALIDADES
PROJETOS PARA MORADIAS


